Серия РДК-10 (диаметр тетивы – 10мм)
Серия РСК-14 (диаметр тетивы – 14мм)
Серия РДК-14 (диаметр тетивы – 14мм)
Серия РСКУ-14. Фурнитура для козырьков с большим вылетом
Методы крепления стеклянных козырьков на стоечно-ригельный витраж
Серия РСК-16 (диаметр тетивы – 16мм)
Конкурентные преимущества фурнитуры для козырьков от нашей компании
Примечание:
Специальные цены при заказе свыше 50 комплектов.
Возможно любое изменение конструктива.
Возможны любые длины тетивы с шагом 1 мм.
Окажем помощь в проектировании козырьков.
Серия РСК (диаметр тетивы - 10 мм)
+ ![]() Комплект креплений для козырька | |
| Артикул | Цена, руб. |
| РСК 50/304 | 11 200 |
| РСК 60/304 | 11 200 |
| РСК 50/316 | 13 600 |
| РСК 60/316 | 13 600 |
Толщина стекла - от 10 до 20 мм.
Вылет стекла козырька - до 1700 мм,
В артикулах цифры 50 (60) обозначают диаметр используемых шайб, 304 (316) - материал креплений (нержавеющая сталь aisi 304 и aisi 316 соответственно).
Шпильки в стену - М12.
Штифты в креплениях - Ø8 мм.
винты крепления - М8
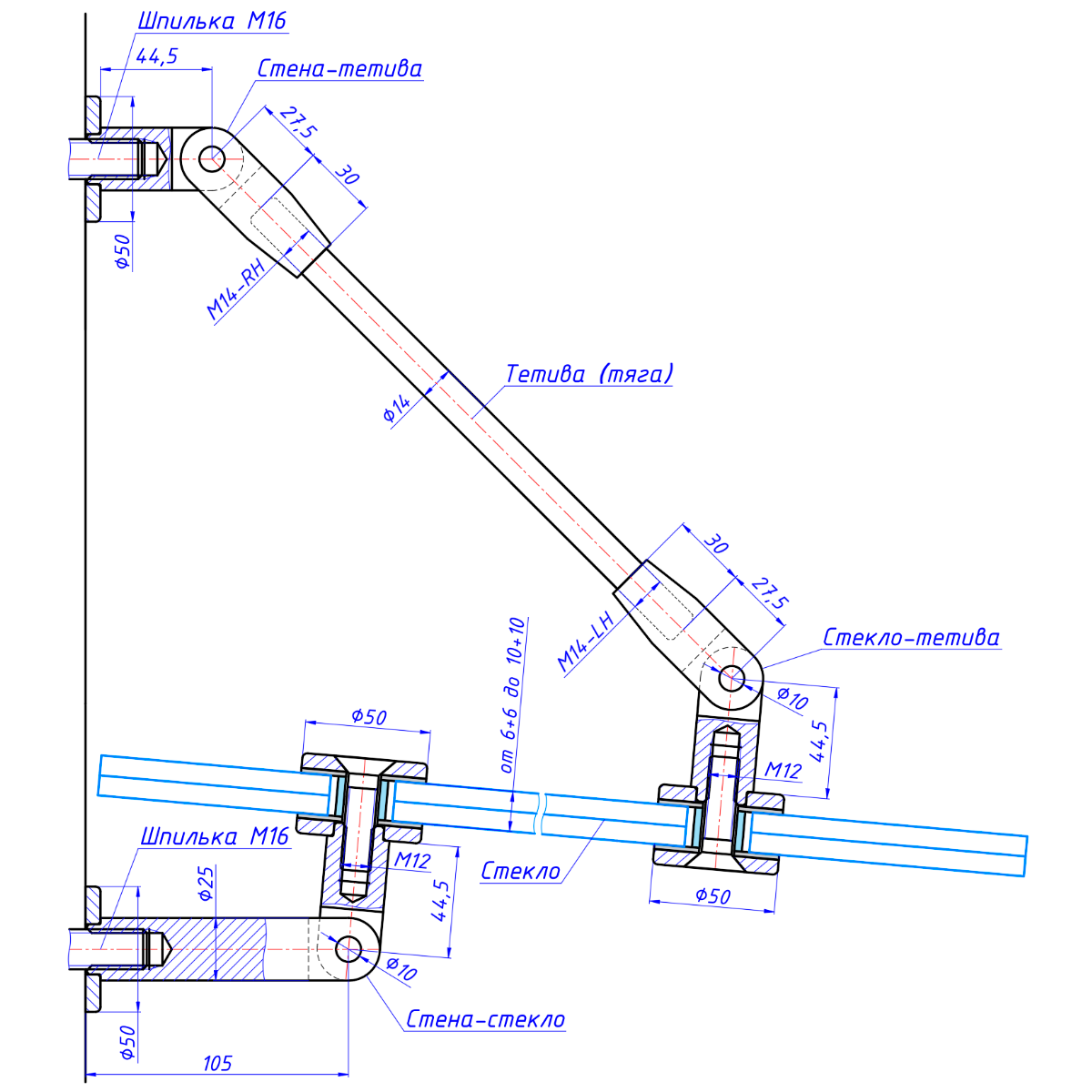
Комплект фурнитуры стеклянного козырька состоит из креплений:
Стена-стекло; Стена-тетива; Стекло-тетива; Тетива.
Мы производим и реализуем фурнитуру изготовленную из нержавеющей стали двух марок:
aisi 304; aisi 316.
+ | ||
| Артикул | Цена, руб. | |
| РСК-Д 50/304 | 14 600 | |
| РСК-Д 60/304 | 14 600 | |
| РСК-Д 50/316 | 18 000 | |
| РСК-Д 60/316 | 18 000 | |
Крепление стена-стекло служит для монтажа стекла к фасаду здания. По конструкции бывают как одиночные, так и сдвоенные. Для монтажа одного или двух стёкол соответственно. В комплектацию входит винт М8 с маркировкой А2-70 для растяжек, изготовленных из из нержавеющей стали aisi 304 (A4-80 для растяжек, изготовленных материала aisi 316). Предел прочности винтов 700 мПа (800 мПа), класс кислотостойкости А2 (А4).
Крепления стена-стекло и стена-тетива крепятся к стене с помощью шпильки резьбовой М12 и химического анкера. Рекомендуем использовать шпильку упрочненную, которая имеет маркировку не менее 8.8, предел прочности на растяжение которых составляет не менее 640 мПа. Реализуемые нами шпильки имеют предел прочности 868 мПа.
Стекло-тетива крепит стекло к тетиве. В комплект входит стопорный винт М4, который предупреждает самопроизвольное вращение тетивы, а также винт М8 с маркировкой А2-70 или А4-80.
Тетива. Изготовлена из прутка 10 мм, с двух сторон нарезана резьба М10 с крупным шагом. С одной стороны резьба правая, с другой – левая. Длины резьб 40 мм. Со стороны левой резьбы фрезерованы лыски под ключ 8 мм для регулировки угла наклона стекла козырька.
+ ![]() Крепление стена-стекло | ||
| Артикул | Цена, руб. | |
| ССН 50/304 | 3 250 | |
| ССН 60/304 | 3 250 | |
| ССН 50/316 | 3 900 | |
| ССН 60/316 | 3 900 | |
+ ![]() Крепление стена-тетива | ||
| Артикул | Цена, руб. | |
| СТВ 50/304 | 3 250 | |
| СТВ 60/304 | 3 250 | |
| СТВ 50/316 | 3 900 | |
| СТВ 60/316 | 3 900 | |
+ | ||
| Артикул | Цена, руб. | |
| СТ 50/304 | 3 250 | |
| СТ 60/304 | 3 250 | |
| СТ 50/316 | 3 900 | |
| СТ 60/316 | 3 900 | |
+ 8 стандартных длин. | ||
| Артикул | Цена, руб. | |
| Т/304 | 1 460 | |
| Т/316 | 2 000 | |
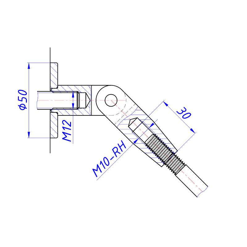
Серия РДК-10 (диаметр тетивы - 10 мм)
+ | ||
| Артикул | Цена, руб. | |
| РДК 50/304 | 7 800 | |
Толщина стекла - от 10 до 8+8мм.
Вылет стекла козырька - до 1700мм.
В артикулах цифра 50 обозначает диаметр используемых шайб, 304 - материал креплений (нержавеющая сталь aisi 304). Шпильки в стену - М12.
Штифты в креплениях – Ø8мм.
Винты крепления – М8
Комплект фурнитуры стеклянного козырька состоит из тетивы и креплений: стена-стекло, стена-тетива; стекло-тетива.
Тетива длиной до 1,5м входит в комплект, под заказ – любой длины до 6м, срок изготовления – 1 день.
Серия РСК-14 (диаметр тетивы - 14 мм)
+ | ||
| Артикул | Цена, руб. | |
| РСК 14/304 | 14 200 | |
| РСК 14/316 | 16 000 | |
Толщина стекла - от 16 до 24 мм.
Вылет стекла козырька - до 2200 мм,
В артикулах цифры 304 (316) - материал креплений (нержавеющая сталь aisi 304 и aisi 316 соответственно).
Шпильки в стену - М16.
Штифты в креплениях - Ø10 мм.
винты крепления - М12
Серия РДК-14 (диаметр тетивы - 14 мм)
+ | ||
| Артикул | Цена, руб. | |
| РДК 14/304 | 9 000 | |
Толщина стекла - от 6+6мм до 10+10мм.
Вылет стекла козырька - до 2200 мм,
В артикулах цифра 304 - материал креплений (нержавеющая сталь aisi 304).
Шпильки в стену - М16.
Штифты в креплениях - Ø10 мм.
винты крепления - М12
Комплект фурнитуры стеклянного козырька состоит из тетивы и креплений: стена-стекло, стена-тетива; стекло-тетива. Тетива длиной до 1,5м входит в комплект, под заказ – любой длины до 6м, срок изготовления – 1 день.
Серия РСКУ-14. Фурнитура для козырьков с большим вылетом
+ ![]() | ||
| Артикул | Цена, руб. | |
| РСКУ 14/304 | 16 800 | |
| РСКУ 14/316 | 19 380 | |
Толщина стекла - от 12 до 24 мм.
Вылет стекла козырька - до 2500 мм,
В артикулах цифры 304 (316) - материал креплений (нержавеющая сталь aisi 304 и aisi 316 соответственно)
Шпильки в стену - М16.
Штифты в креплениях - Ø10 мм.
винты крепления - М12.
Методы крепления стеклянных козырьков на стоечно-ригельный витраж
+ ![]() | ||
| Артикул | Цена, руб. | |
| КДС 155/ст3 | 2 900 | |
| КДС 155/304 | 3 600 | |
Кондуктор КДС 155 подходит для всех стоечно-ригельных систем, имеющихся на рынке.
Толщина стекла - от 10 до 16 мм.
Вылет стекла козырька - до 1300 мм,
В артикулах буквы и цифры ст3 (304) - материал (окрашенная чёрная сталь или нержавеющая сталь aisi 304)
В комплектацию кондуктора входит:
- Втулка резьбовая нержавеющая – 1 шт.
- Шпилька М12 А2 (длинна 80мм) – 1 шт.
- Саморез 5,5х60 А2 DIN 7982 – 5 шт.
+ ![]() | ||
| Артикул | Цена, руб. | |
| КДС 155/AL | 2 500 | |
Кондуктор КДС 155/AL из алюминиевого сплава с цилиндрическими вставками из нержавеющей стали AISI 304 подходит для всех стоечно-ригельных систем, имеющихся на рынке.
Толщина стекла - от 10 до 16 мм.
Вылет стекла козырька - до 1300 мм.
В комплектацию кондуктора входит:
- Втулка резьбовая нержавеющая – 1 шт.
- Шпилька М12 А2 (длинна 80мм) – 1 шт.
- Саморез 5,5х60 А2 DIN 7982 – 5 шт.
+ ![]() | ||
| Артикул | Цена, руб. | |
| КДС 260/ст3 | 3 800 | |
| КДС 260/304 | 4 400 | |
Кондуктор КДС 260 подходит для всех стоечно-ригельных систем, имеющихся на рынке.
Толщина стекла - от 12 до 24 мм.
Вылет стекла козырька - до 1700 мм,
В артикулах буквы и цифры ст3 (304) - материал (окрашенная чёрная сталь или нержавеющая сталь aisi 304)
В комплектацию кондуктора входит:
- Втулка резьбовая нержавеющая – 2 шт.
- Шпилька М12 А2 (длинна 80мм) – 2 шт.
- Саморез 5,5х60 А2 DIN 7982 – 7 шт.
- Гайка М12 колпачковая А2 DIN 1587 – 2 шт.
+ ![]() | ||
| Артикул | Цена, руб. | |
| КДС 260/AL | 3 100 | |
Кондуктор КДС 260/AL из алюминиевого сплава с цилиндрическими вставками из нержавеющей стали AISI 304 подходит для всех стоечно-ригельных систем, имеющихся на рынке.
Толщина стекла - от 12 до 24 мм.
Вылет стекла козырька - до 1700 мм,
В комплектацию кондуктора входит:
- Втулка резьбовая нержавеющая – 2 шт.
- Шпилька М12 А2 (длинна 80мм) – 2 шт.
- Саморез 5,5х60 А2 DIN 7982 – 7 шт.
- Гайка М12 колпачковая А2 DIN 1587 – 2 шт.
Серия РСК-16 (диаметр тетивы - 16 мм)
+ ![]() Комплект креплений для козырька | ||
| Артикул | Цена, руб. | |
| РСК 16/304 | 17 040 | |
| РСК 16/316 | 19 440 | |
Вылет стекла козырька - до 2500 мм,
В артикулах цифры 304 (316) - материал креплений (нержавеющая сталь aisi 304 и aisi 316 соответственно).
Шпильки в стену - М18.
Штифты в креплениях - Ø12 мм.
винты крепления - М14
Конкурентные преимущества фурнитуры для козырьков от нашей компании.
1.Проверенная лабораторными испытанием, прочностными расчётами и временем конструкция.
2.Собственное производство. Мы можем изготовить фурнитуру для установки козырьков именно под ваш объект, согласно вашему проекту, под ваши требования.
3.Отсутствие визуального крепежа к стене при том, что используется высокопрочный крепёж и химический анкер.
4.Мы можем изготовить тетиву с резьбой любой длины от 300 мм до 3000 мм с шагом 1 мм, что бывает крайне важно при монтаже, поможет обеспечить любой угол наклона стекла и любые места для установки креплений.
5.Наше предприятие имеет огромный опыт проектирования, изготовления и установки конструкций из закалённого стекла.
В частности, стеклянных козырьков, ограждений, навесов, перегородок и так далее. Мы можем проконсультировать вас по поводу установки козырьков, помочь с проектированием, провести шеф-монтаж.
6.Наша фурнитура для козырьков имеют фиксирующий винт, который предупреждает самопроизвольное расслабление тетивы, а следовательно изменение положения козырька и даже падение козырька.
7.У нас вы можете приобрести закладные элементы для установки стеклянных козырьков при установке на вентилируемый керамо-гранитный фасад или фасад с утеплением.
8.При необходимости, у нас вы можете приобрести шпильки резьбовые М12, а также химический анкер для установки креплений козырька.
9.При производстве фурнитуры мы используем две марки нержавеющей стали: AISI 304 и AISI 316. Мы строго контролируем качество используемой нержавеющей стали.
10.Вы отправляете нам размеры фасада и предполагаемые точки крепления – мы подбираем длины тяг вашего козырька. Если стандартные размеры не подходят – изготавливаем тяги размерами под ваш козырёк.
11.Основатели и руководители компании – строители с многолетним опытом. Мы думаем с вами на одном языке!!!!










Комплект креплений для козырька серии РДК-10



Комплект креплений для козырька





Комплект креплений для козырька серии РДК-14



























